
3D-Laserscanning der Wasserburg Salzgitter-Gebhardshagen
Die historische Wasserburg Salzgitter-Gebhardshagen wurde im Rahmen einer digitalen Bestandsvermessung vollständig mit modernem 3D-Laserscanning erfasst.
Ziel der Vermessung war die präzise Dokumentation der bestehenden Gebäudestrukturen als Grundlage für Planung, Sanierung und denkmalpflegerische Maßnahmen.
Durch den Einsatz hochauflösender terrestrischer Laserscanner konnten sowohl Innenräume als auch Fassaden millimetergenau erfasst werden.
Die daraus entstandene Punktwolke bildet die Grundlage für Bestandspläne, Schnitte, Ansichten und digitale BIM-Modelle.
Digitale Bestandsaufnahme eines historischen Bauwerks
Für das Projekt wurde die gesamte Anlage mittels terrestrischem 3D-Laserscanning erfasst. Dabei entstehen Millionen von Messpunkten, die als Punktwolke ein präzises digitales Abbild des Gebäudes bilden.
Diese Daten bilden die Grundlage für die Erstellung von Bestandsplänen, Gebäudeschnitten, Fassadenansichten sowie für BIM-Modelle.
3D-Laserscanning mit Leica BLK360
Zum Einsatz kam moderne Laserscantechnik des Herstellers Leica. Mit dem BLK360 können Gebäude schnell und hochpräzise digital erfasst werden.
Durch die Registrierung mehrerer Scanpositionen entsteht eine vollständige Punktwolke des gesamten Gebäudes.
Für die Erfassung von Dachflächen und schwer zugänglichen Bereichen wurde ergänzend Drohnenvermessung (UAV) eingesetzt.
Die Bestandsaufnahme erfolgte mittels 3D-Laserscanning und bildet die Grundlage für Planung, Sanierung und BIM-Modelle.
Grundlage für Planung und Denkmalschutz
Die erzeugten digitalen Bestandsdaten ermöglichen Architekten, Ingenieuren und Denkmalbehörden eine präzise Analyse des Gebäudebestands.
Die Punktwolken dienen als Grundlage für Sanierungsplanung, Umbauprojekte und denkmalgerechte Dokumentation historischer Bauwerke.
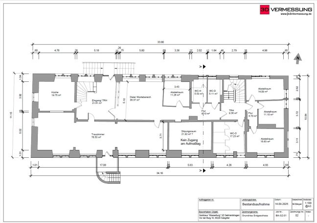
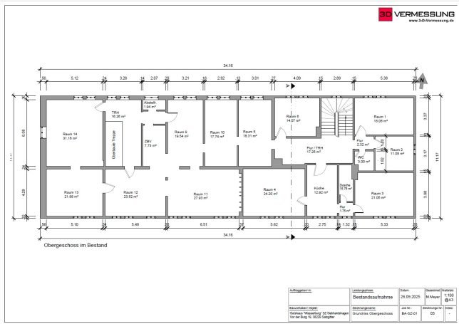
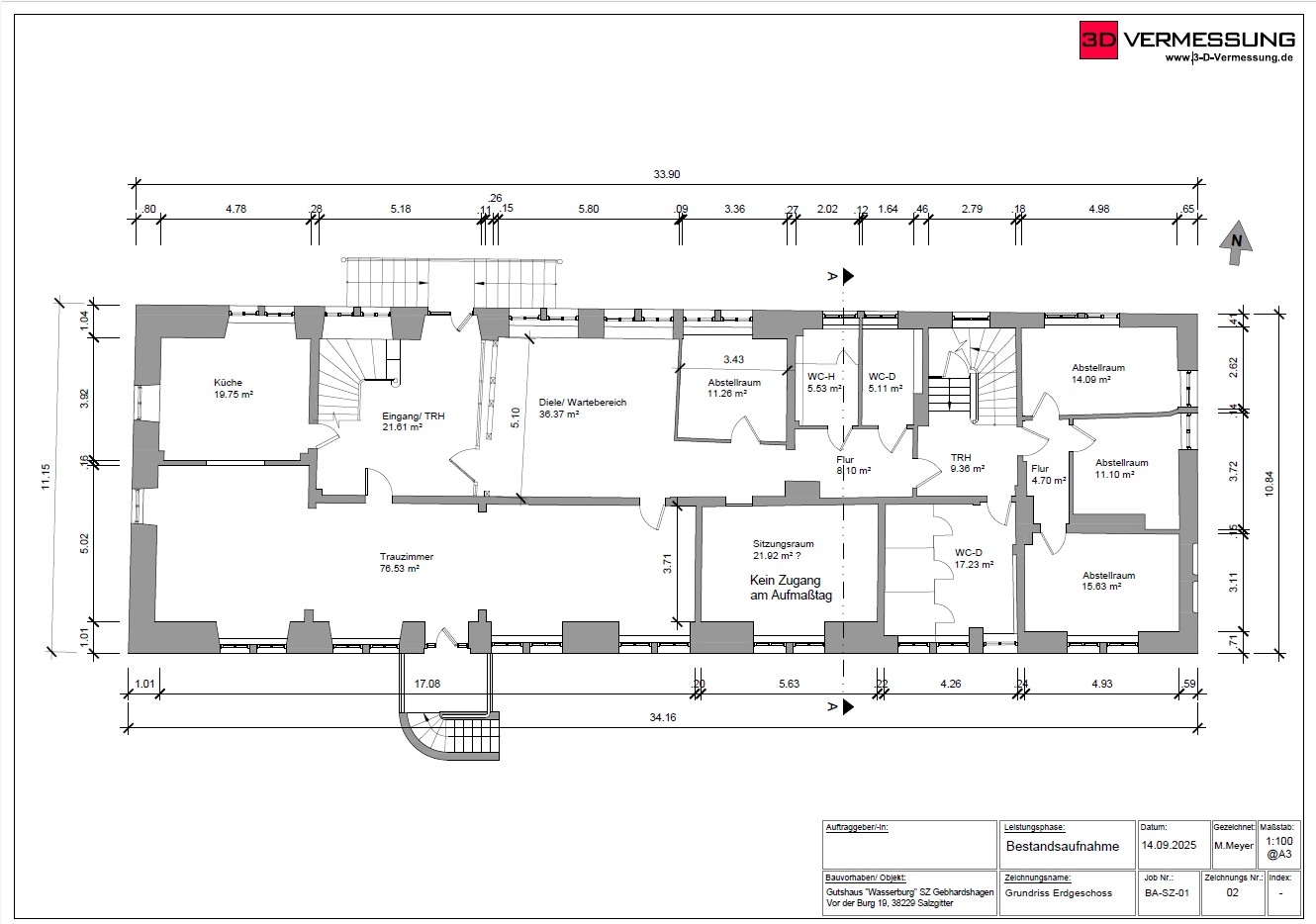
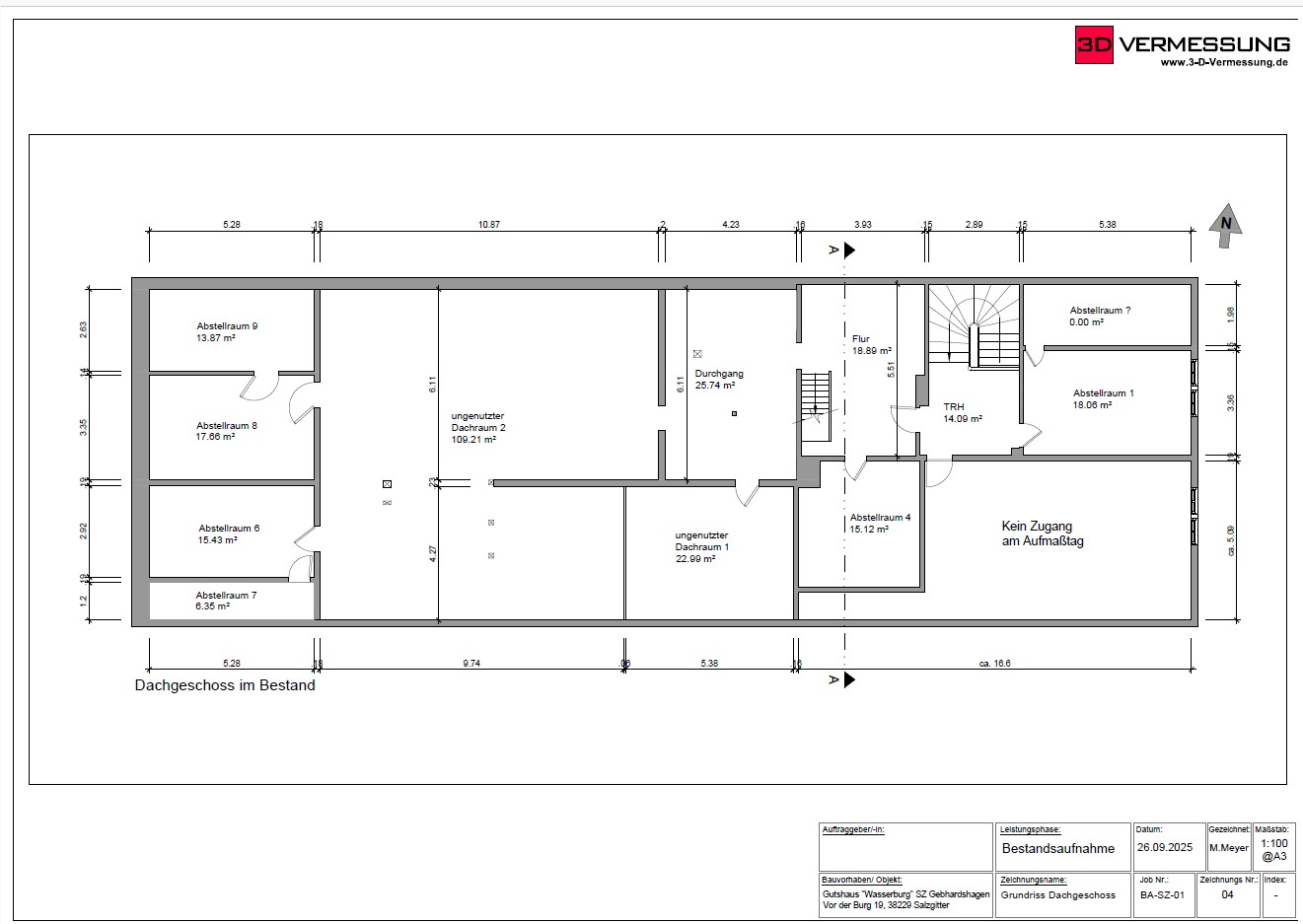
Ergebnisse der 3D-Bestandsvermessung – Ansichten, Grundrisse und Schnitte
Aus der erzeugten Punktwolke der Wasserburg Salzgitter-Gebhardshagen wurden präzise Grundrisse, Gebäudeschnitte und Fassadenansichten abgeleitet. Diese Daten dienen als Grundlage für Planung, Sanierung und denkmalgerechte Dokumentation.
Weitere Referenzprojekte
Projektinformationen zur Bestandsvermessung
Objekt
Wasserburg Salzgitter-Gebhardshagen
Standort
Salzgitter, Niedersachsen
Gebäudetyp
Historische Wasserburg / Denkmalgeschütztes Gebäude
Leistung
3D-Laserscanning und digitale Bestandsvermessung
Erfasste Bereiche
Innenräume, Fassaden und Dachbereiche
Vermessungstechnologie
Terrestrisches 3D-Laserscanning (Leica BLK360)
Ergebnis der Vermessung
- Punktwolkenmodell des gesamten Gebäudes
- Bestandsgrundrisse aller Geschosse
- Gebäudeschnitte
- Fassadenansichten
Anwendungsbereich
- Sanierungsplanung
- Denkmalgerechte Dokumentation
- Architektenplanung
Die Vermessung der Wasserburg Salzgitter-Gebhardshagen zeigt, wie moderne 3D-Laserscanning-Technologie eingesetzt werden kann, um historische Gebäude präzise digital zu dokumentieren und eine zuverlässige Grundlage für zukünftige Planungs- und Sanierungsmaßnahmen zu schaffen.
Weitere 3D Ansichten und Fotos Wasserburg Gebhardshagen
3D-Laserscanning für historische Gebäude in Niedersachsen
Das Projekt der Wasserburg Salzgitter-Gebhardshagen ist ein Beispiel für den Einsatz moderner 3D-Laserscanning-Technologie bei historischen Bestandsgebäuden.
Der 3D-Vermessungsdienst führt Bestandsvermessungen und digitale Gebäudedokumentationen für Architekten, Ingenieure und öffentliche Auftraggeber in Hannover, Braunschweig, Salzgitter sowie im gesamten Raum Niedersachsen bzw. ganz Norddeutschland durch.
Bei diesem Projekt kam ergänzend zur Vermessung auch Drohnentechnologie (UAV) zum Einsatz, um Dachflächen und schwer zugängliche Bereiche effizient zu erfassen.
Weitere Referenzprojekte der 3D-Vermessung
.Weitere Projekte im Bereich Vermessung historischer Gebäude:


















