
3D-Bestandsvermessung eines Gebäudes in Hannover
Für ein Bestandsgebäude in Hannover wurde eine vollständige digitale Bestandsvermessung mittels 3D-Laserscanning und ergänzender Drohnenaufnahmen durchgeführt.
Ziel des Projektes war die Erstellung präziser Bestandsdaten als Grundlage für Planung, Sanierung und weitere bauliche Maßnahmen.
Bestandsaufnahme und 3D-Modellierung – Flüggestraße Hannover
Das Gebäude in der Flüggestraße Hannover wurde mittels 3D-Laserscanning und Drohnenaufnahmen vollständig digital erfasst.
Für die Erfassung von Dachflächen und schwer zugänglichen Bereichen wurde ergänzend Drohnenvermessung (UAV) eingesetzt.
Die Bestandsaufnahme erfolgte mittels 3D-Laserscanning und bildet die Grundlage für Planung, Sanierung und BIM-Modelle.
Aus den gewonnenen Daten entstand ein präzises 3D-Modell, das als Grundlage für die weitere Planung und Auswertung dient und eine realitätsnahe Darstellung der Gebäudestruktur ermöglicht.
Die Kombination aus Laserscanning und Drohnenvermessung ermöglicht eine vollständige Erfassung aller Gebäudebereiche – auch von Dachflächen und schwer zugänglichen Strukturen.
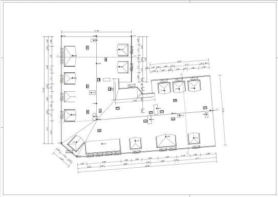
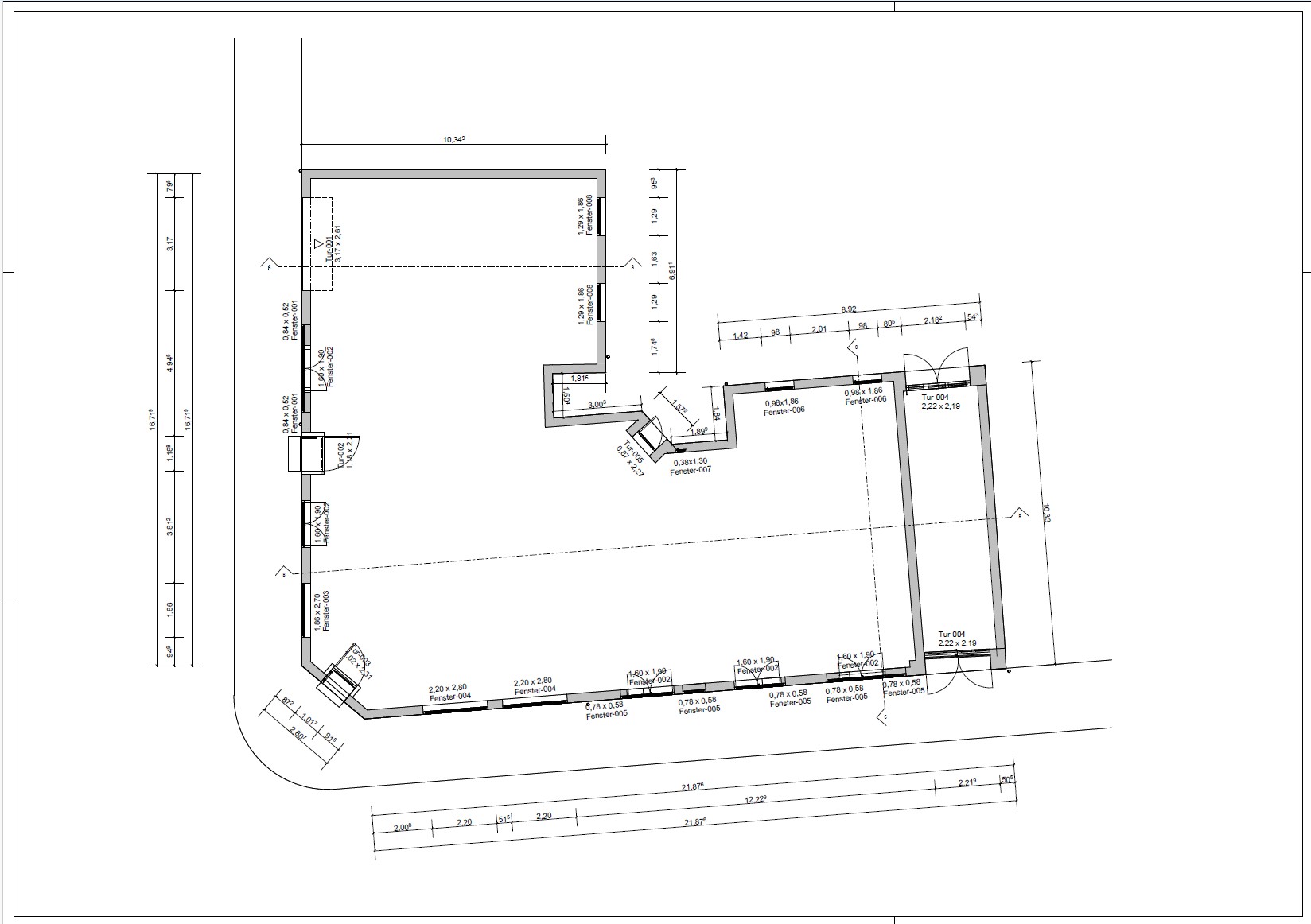
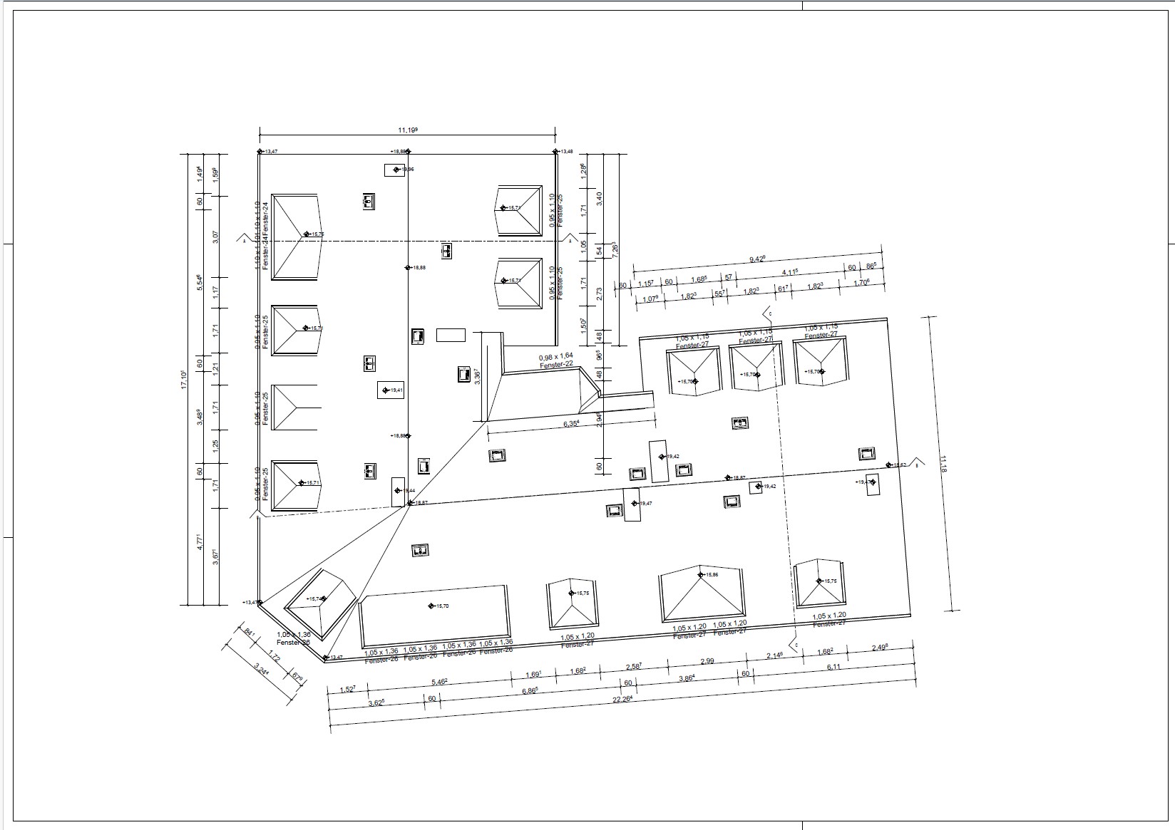
Bestandspläne aus 3D-Laserscanning – Grundrisse, Schnitte und Fassaden
Auf Basis der erfassten Laserscandaten wurden präzise Bestandspläne des Gebäudes in der Flüggestraße Hannover erstellt.
Die Auswertung der Punktwolke ermöglicht die Ableitung exakter Grundrisse, Schnitte, Fassadenansichten und Dachaufsichten. Alle Planunterlagen dienen als verlässliche Grundlage für Planung, Sanierung und weitere bauliche Maßnahmen.
Die dargestellten Planunterlagen umfassen:
- Grundrisse mit Maßangaben
- Fassadenansichten (Nord, West, Hofseite)
- Gebäudeschnitte mit Höhenangaben
- Dachaufsichten
Weitere Referenzprojekte der 3D-Vermessung
3D-Laserscanning Wasserburg Salzgitter-Gebhardshagen
3D-Bestandsaufnahme Aufseherhaus Herkules Kassel
3D-Bestandsvermessung eines Gebäudes in Hannover
Bei diesem Projekt kam ergänzend zur Vermessung auch Drohnentechnologie (UAV) zum Einsatz, um Dachflächen und schwer zugängliche Bereiche effizient zu erfassen.
Weitere Referenzprojekte der 3D-Vermessung
Weitere Projekte im Bereich 3D-Laserscanning und digitale Bestandsvermessung:
• 3D-Laserscanning Universität Braunschweig
• Mehrfamilienhaus Wittenberge Digitale Vermessung Pläne Kostenermittlung
• Oberschule Ottbergen – Digitale Vermessung
• Wasserburg Salzgitter – Historisches Gebäude














