3D-Bestandsvermessung Bauernhaus Isernhagen – Laserscanning und Planung für Sanierung
Historischer Bauernhof - Bestandsvermessung für eine Sanierung
Für ein Bauernhaus in Isernhagen wurde eine vollständige digitale Bestandsvermessung mittels 3D-Laserscanning und ergänzender Drohnenaufnahmen durchgeführt.
Ziel war die Erstellung präziser Bestandsdaten als Grundlage für die geplante Sanierung sowie die Vorbereitung weiterer Maßnahmen wie die Installation einer Photovoltaikanlage.





Bauernhaus mit Stallungen – Bestandsaufnahme & 3D-Vermessung in Isernhagen
Erfassung der historischen Gebäudestruktur
Bauernhaus in Isernhagen, ergänzt durch Stallungen und Unterstände, die das Ensemble stimmig abrunden. Das Anwesen befindet sich in einem sehr gepflegten und architektonisch hochwertigen Zustand und zeichnet sich durch seine traditionelle Bauweise, die sichtbaren Holzkonstruktionen sowie zahlreiche liebevoll erhaltene Details aus.
Im Rahmen des Projekts wurde das gesamte Gebäude mit einer Wohnfläche von ca. 800 m² vollständig mit einem terrestrischen 3D-Laserscanner (Leica BLK360) erfasst. Ziel war eine präzise Bestandsaufnahme als verlässliche Grundlage für Planung, Sanierung und zukünftige Nutzung.
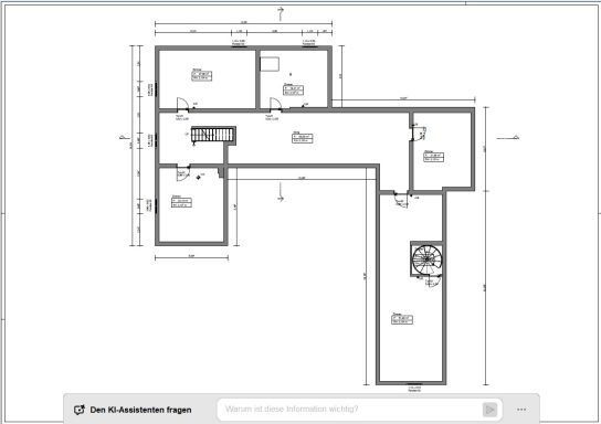
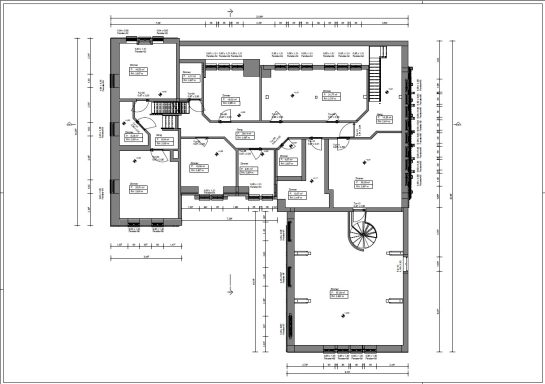
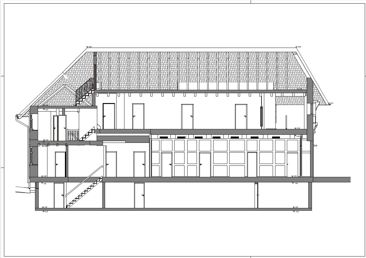
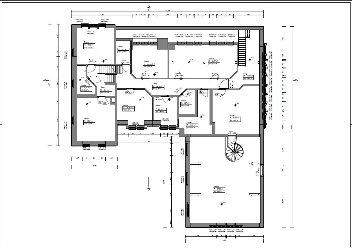
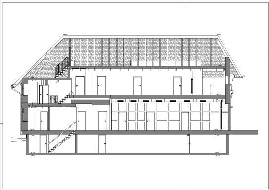
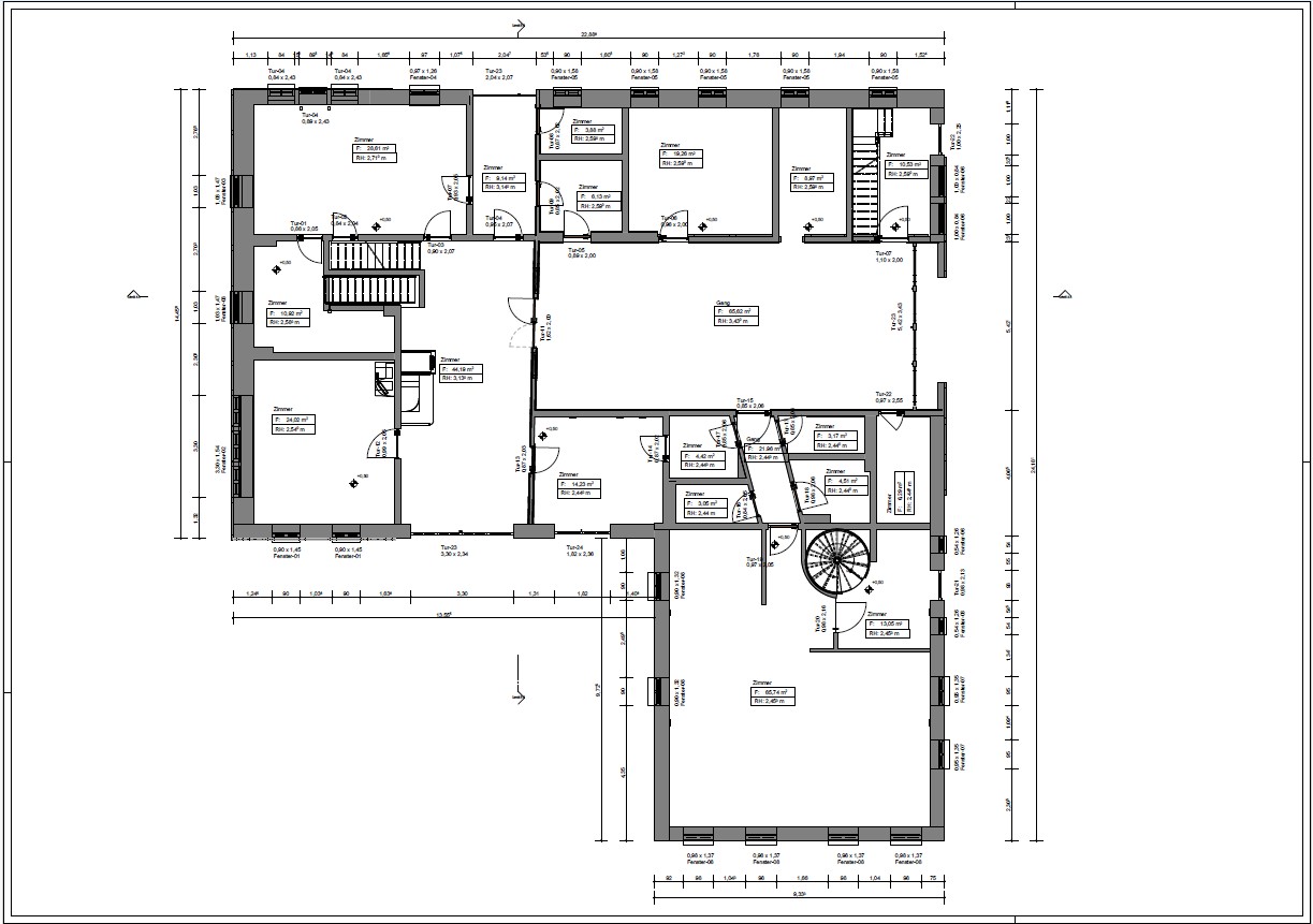
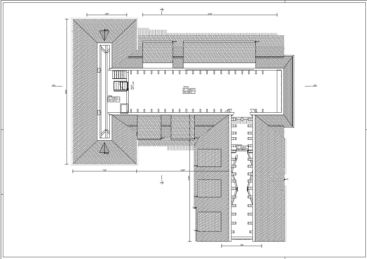
Auf Basis der hochauflösenden Punktwolke wurden anschließend neue, maßgenaue Bestandspläne erstellt, darunter:
- Grundrisse aller Ebenen
- Gebäudeschnitte
- Fassaden- und Ansichtspläne
Besonderes Augenmerk lag auf der exakten Erfassung der historischen Gebäudestruktur, der Wandstärken, Öffnungen sowie der charakteristischen Fassaden- und Dachgeometrie. Auch der Eingangsbereich mit seiner handwerklich geprägten Gestaltung konnte detailliert dokumentiert und planerisch sauber abgebildet werden.
Das Projekt zeigt exemplarisch, wie sich moderne 3D-Vermessungstechnologie und historische Bausubstanz ideal verbinden lassen:
präzise, berührungslos und ohne Eingriffe in die bestehende Struktur – als sichere Grundlage für Architekten, Planer und Eigentümer.
Leistungsübersicht
- Terrestrische 3D-Laserscan-Vermessung (Leica BLK360)
- Erstellung einer hochauflösenden Punktwolke
- Bestandspläne: Grundrisse, Schnitte, Ansichten
- Maßgenaue Dokumentation der historischen Bausubstanz
- Planungsgrundlage für Umbau, Sanierung oder Weiterentwicklung
Weitere Informationen zu unseren Leistungen im Bereich 3D-Laserscanning und digitale Bestandsvermessung finden Sie hier.
Digitaler Rundgang - siehe Unten:
Das Bauernhaus ist als digital 3D-Rundgang vollständig begehbar.
Mit der Maus können Besucher durch die Räume navigieren, Ansichten ändern und Details heranzoomen.
Der Rundgang zeigt die gesamte Struktur des Bauernhauses in Isernhagen in fotorealistischer Darstellung.
CAD Pläne (BIM) historisches Bauernhaus in Isernhagen (Hannover)
Das Gebäude in Isernhagen weist einen denkmalschutzwürdigen Charakter auf und erfordert eine besonders präzise Bestandsaufnahme.
Durch die Kombination aus 3D-Laserscanning und Drohnenvermessung konnten alle Gebäudebereiche vollständig erfasst und als Grundlage für die weitere Planung dokumentiert werden.
Für die Erfassung von Dachflächen und schwer zugänglichen Bereichen wurde ergänzend Drohnenvermessung (UAV) eingesetzt.
Die Bestandsaufnahme erfolgte mittels 3D-Laserscanning und bildet die Grundlage für Planung, Sanierung und BIM-Modelle.
Bestandspläne als Grundlage für Planung und Sanierung
Aus den erfassten Daten wurden präzise Bestandspläne erstellt, die als Grundlage für die weitere Planung dienen.
Weitere Referenzprojekte der 3D-Vermessung
Weitere Projekte im Bereich 3D-Laserscanning und Bestandsvermessung:
3D-Laserscanning Wasserburg Salzgitter-Gebhardshagen
Bestandsaufnahme Aufseherhaus Herkules Kassel
3D-Bestandsvermessung Hannover
Sanierungsprojekt Wittenberge Denkmalschutz
Bei diesem Projekt kam ergänzend zur Vermessung auch Drohnentechnologie (UAV) zum Einsatz, um Dachflächen und schwer zugängliche Bereiche effizient zu erfassen.
Weitere Referenzprojekte der 3D-Vermessung
Weitere Projekte im Bereich Vermessung historischer Gebäude:
• Wasserburg Salzgitter
• Aufseherhaus Herkules Kassel
• Gutshof Hannover-Anderten










