
3D-Laserscanning eines denkmalgeschützten Gutshofs in Hannover-Anderten
Für einen denkmalgeschützten Gutshof in Hannover-Anderten wurde eine vollständige digitale Bestandsaufnahme mittels 3D-Laserscanning durchgeführt.
Ziel des Projektes war die Erstellung präziser Bestandspläne für Planung, Sanierung und denkmalgerechte Dokumentation des historischen Gebäudes.
Besonderheiten bei der Bestandsvermessung eines Denkmalschutzgebäudes
Die Vermessung historischer Gebäude stellt besondere Anforderungen an die Genauigkeit und Dokumentation.
Beim Gutshof in Hannover-Anderten erschwerten unter anderem begrünte Fassaden sowie komplexe Gebäudestrukturen die Erstellung exakter Ansichtspläne. Ziel war es, die vorhandene Bausubstanz vollständig und detailgetreu digital zu erfassen.
Digitale Bestandsaufnahme mit 3D-Laserscanning
Die Erfassung des Gebäudes erfolgte mit modernem 3D-Laserscanning (Leica BLK360). Dabei wurde ein hochauflösender digitaler Zwilling des Gebäudes erzeugt.
Die daraus entstandene Punktwolke ermöglicht eine virtuelle Begehung sowie die exakte Ableitung aller relevanten Maße mit einer Genauigkeit im Millimeterbereich.
Bestandsaufnahme und digitale Dokumentation – Gutshof Anderten
Das Gebäude wurde vollständig mittels 3D-Laserscanning digital erfasst.
Für die Erfassung von Dachflächen und schwer zugänglichen Bereichen wurde ergänzend Drohnenvermessung (UAV) eingesetzt.
Die Bestandsaufnahme erfolgte mittels 3D-Laserscanning und bildet die Grundlage für Planung, Sanierung und BIM-Modelle.
Die daraus gewonnenen Daten bilden die Grundlage für detaillierte Bestandspläne und ermöglichen eine präzise Planung unter Berücksichtigung der Anforderungen des Denkmalschutzes.
Die vollständige Erfassung aller Gebäudeseiten sowie der Grundrissstruktur ermöglicht eine lückenlose Dokumentation des Bestands.
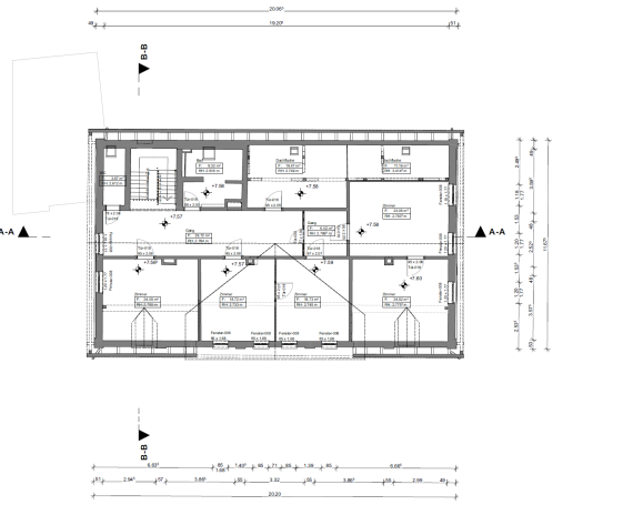
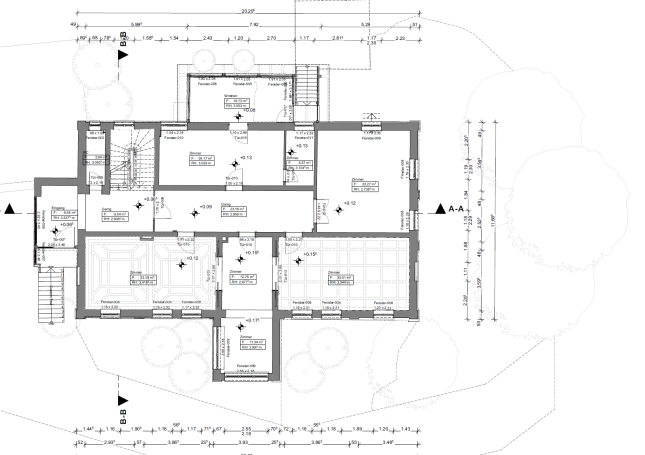
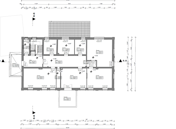
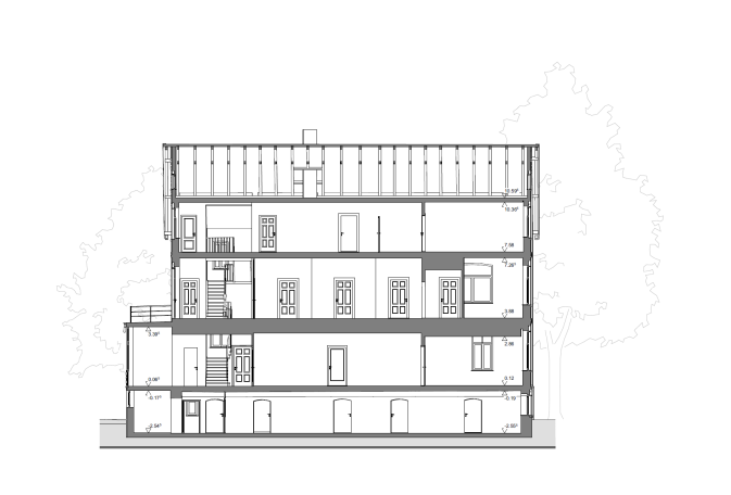
Erstellung von Bestandsplänen und Rekonstruktionen
Auf Basis der erfassten Daten wurden präzise Grundrisse, Schnitte und Fassadenansichten des Gebäudes erstellt.
Auch historische Bauteile wie Terrassen, Fassadenelemente und konstruktive Details konnten detailgetreu rekonstruiert und in die Planunterlagen übernommen werden.
Grundlage für Planung und Denkmalschutz
Die erzeugten digitalen Bestandsdaten dienen Architekten, Ingenieuren und Behörden als Grundlage für Sanierungsplanung, denkmalgerechte Dokumentation und zukünftige Bauprojekte.
Gerade im Bereich Denkmalschutz ermöglicht das 3D-Laserscanning eine präzise und berührungslose Erfassung historischer Bausubstanz.
3D Gallerie Denkmal
Ein paar Eindrücke, was man aus einem 3D Model kreieren kann
Aus der Laser-Punktwolke entsteht ein 3D BIM Model, welches die Basis für Grundrisse, Ansichten, Schnitte, Volumen, Flächenberechnung und zusätzlichen Daten wie Baumaterial, Hersteller und einiges mehr. Mit Schnittstellenformaten wie IFC (Industry Foundation Classes) und auch anderen Dateiformaten können wir Ihnen für Ihre weitere Planung oder Facility Management auf Wunsch zukommen lassen.
Blick in die Punktwolke
Dieser kurze Videoclip zeigt die Punktwolke von außen, als auch die einige Innenbereiche, die zusätzlich mit unserem Matterport System aufgenommen worden sind.
Weitere Referenzen
Projektinformationen
- Objekt: Gutshof Hannover-Anderten
- Gebäudetyp: Denkmalgeschütztes Gebäude
- Leistung: 3D-Laserscanning Bestandsvermessung
- Ergebnis: Punktwolke, Grundrisse, Schnitte, Ansichten
Projektanfrage – 3D-Laserscanning und Bestandsvermessung
Sie planen eine Bestandsaufnahme eines Gebäudes oder benötigen präzise Vermessungsdaten für ein Bauprojekt?
Gerne beraten wir Sie zu Ihrem Vorhaben und erstellen ein individuelles Angebot für die digitale Bestandsvermessung.
Bei diesem Projekt kam ergänzend zur Vermessung auch Drohnentechnologie (UAV) zum Einsatz, um Dachflächen und schwer zugängliche Bereiche effizient zu erfassen.



















