
Herausforderung der Bestandsaufnahme
→ komplexe Gebäudestruktur, mehrere Gebäudeteile
Lösung
→ Kombination aus Laserscanning + Drohne
Ergebnis
→ vollständige Planungsgrundlage für serielle Sanierung
Oberschule Söhlde – Digitale Bestandsaufnahme für serielle Sanierung
Die Oberschule Söhlde wurde vollständig mittels 3D-Laserscanning digital erfasst und durch Drohnenvermessung ergänzt.
Für die Erfassung von Dachflächen und schwer zugänglichen Bereichen wurde ergänzend Drohnenvermessung (UAV) eingesetzt.
Die Bestandsaufnahme erfolgte mittels 3D-Laserscanning und bildet die Grundlage für Planung, Sanierung und BIM-Modelle.
Aufgrund der Größe und Struktur des Gebäudekomplexes war eine lückenlose und geometrisch exakte Aufnahme aller Baukörper erforderlich.
Die daraus erzeugten Daten dienen als verlässliche Grundlage für die serielle Sanierung sowie für BIM-basierte Planungsprozesse.
Für die geplante serielle Sanierung der Oberschule Söhlde wurde der gesamte Schulkomplex als präziser digitaler Bestand erfasst.
Auf einer Grundfläche von rund 8.500 m² bildet die erstellte Bestandsdokumentation die Grundlage für Planung, Koordination und Umsetzung der anstehenden Maßnahmen.
Die digitale Bestandsaufnahme bildet die Grundlage für eine serielle Sanierung, bei der Planung, Ausschreibung und Umsetzung effizient und standardisiert erfolgen können.
Die digitale Bestandsaufnahme bildet die Grundlage für eine serielle Sanierung, bei der Planung, Ausschreibung und Umsetzung effizient und standardisiert erfolgen können.
Weitere Projekte im Bereich 3D-Laserscanning umfassen unter anderem Universitätsgebäude sowie komplexe Bestandsgebäude im Denkmalschutz.
Projektkontext und Gebäudestruktur
Der Schulstandort Söhlde besteht aus mehreren funktional verbundenen Baukörpern.
Neben dem Hauptgebäude der Oberschule umfasst der Komplex:
- eine Sporthalle
- einen Anbau für technische Lernfächer (u. a. Werken, Labor, Elektrotechnik)
- eine angeschlossene Schwimmhalle, die eigenständig durch die Gemeinde betrieben wird
Die unterschiedlichen Nutzungsbereiche und Bauphasen erfordern eine vollständig abgestimmte und maßhaltige Bestandsaufnahme, um spätere Planungs- und Sanierungsschritte effizient vorbereiten zu können.
Leistungsumfang im Überblick:
- 3D-Laserscan des gesamten Gebäudebestands
- Drohnengestützte Vermessung für Dach- und Außenbereiche
- Zusammenführung zu einer hochgenauen Punktwolke
- Aufbereitung der Daten als belastbare Planungsgrundlage für die serielle Sanierung
Gelieferte Datenformate:
- Punktwolke: E57
- Bestandsmodell: IFC
- Planunterlagen: PDF
- BIM-Modell zur Weiterverarbeitung: Revit
Die bereitgestellten Daten ermöglichen eine präzise Planung, eine sichere Mengenermittlung sowie eine effiziente Koordination aller beteiligten Fachdisziplinen.
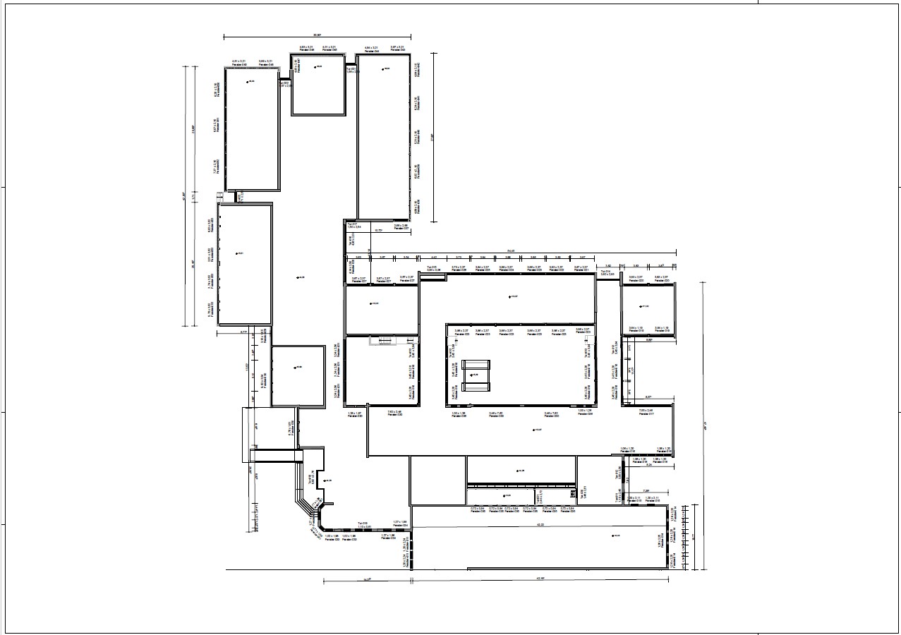
Bestandsaufnahme und digitale Dokumentation – Oberschule Söhlde
Der Gebäudekomplex der Oberschule Söhlde wurde vollständig mittels 3D-Laserscanning und Drohnenvermessung digital erfasst.
Die Darstellung umfasst alle Baukörper einschließlich Schulgebäude, Sporthalle und Schwimmhalle. Auf Basis der erfassten Daten wurden präzise Grundrisse, Schnitte und Ansichten erstellt, die als Grundlage für die serielle Sanierung und weitere Planungsprozesse dienen.
Referenzprojekte
Weitere Referenzprojekte:
Aufseherhaus Herkules Kassel
Wasserburg Salzgitter
3D-Bestandsvermessung Hannover
Bei diesem Projekt kam ergänzend zur Vermessung auch Drohnentechnologie (UAV) zum Einsatz, um Dachflächen und schwer zugängliche Bereiche effizient zu erfassen.
Weitere Referenzprojekte der 3D-Vermessung
Weitere Projekte im Bereich öffentlicher Gebäude:










