Das historische Aufseherhaus am Herkules in Kassel wurde mittels 3D-Laserscanning vollständig digital erfasst. Der virtuelle Rundgang ermöglicht eine realitätsnahe Begehung des Gebäudes und dient als Grundlage für präzise Bestandspläne und BIM-Modelle.
Aufseherhaus mit Scanner von Leica als Punktwolke erfasst und neue Bestandspläne nach BIM erstellt
Das Aufseherhaus am UNESCO-Weltkulturerbe Herkules wurde vollständig mittels moderner 3D-Laserscantechnik aufgenommen. Die präzise Bestandsaufnahme bildet die Grundlage für zukünftige Sanierungsmaßnahmen, Umbauplanungen und denkmalpflegerische Entscheidungen.
Erfasst wurden sowohl Innenbereiche als auch die komplette Außenhülle des Gebäudes, sodass ein vollständiges digitales Abbild (Digital Twin) entstanden ist.
Erfassungs- und Modellierungsworkflow
- Vorbereitung und Scanplanung
- 3D-Laserscan Innen- und Außenbereich mit Leica BLK360
- Zusammenführung, Ausrichtung und Filterung der Punktwolke
- Export der Daten in Formaten wie E57, RCP, LAS
- Weiterverarbeitung in Autodesk Revit zur Erstellung eines präzisen Bestandsmodells
- Ausgabe der erforderlichen Pläne (Grundrisse, Schnitte, Ansichten)
Besonderheiten des Bestands
- • Historisches Mauerwerk mit Unregelmäßigkeiten
• Unterschiedliche Bauphasen im Inneren erkennbar
• Deckenhöhen und Dachgeometrien weichen von modernen Standards ab
• Teilweise schwer zugängliche Bereiche — durch 3D-Modell vollständig dokumentiert
Nutzen für den Auftraggeber
Die digitale Bestandsaufnahme ermöglicht es allen Projektbeteiligten, den Zustand des Gebäudes exakt zu analysieren.
Planungen können ohne Vor-Ort-Termine durchgeführt werden, da alle Maße, Strukturen und Raumgeometrien direkt aus dem Modell abgeleitet werden können.
Virtueller Rundgang durch das Aufseherhaus am Herkules (UNESCO-Weltkulturerbe)
Das historische Aufseherhaus am Herkules in Kassel wurde mittels 3D-Laserscanning vollständig digital erfasst. Der virtuelle Rundgang ermöglicht eine realitätsnahe Begehung des Gebäudes und dient als Grundlage für präzise Bestandspläne und BIM-Modelle.
Vom historischen Bau zum digitalen Zwilling
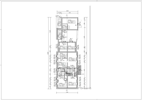
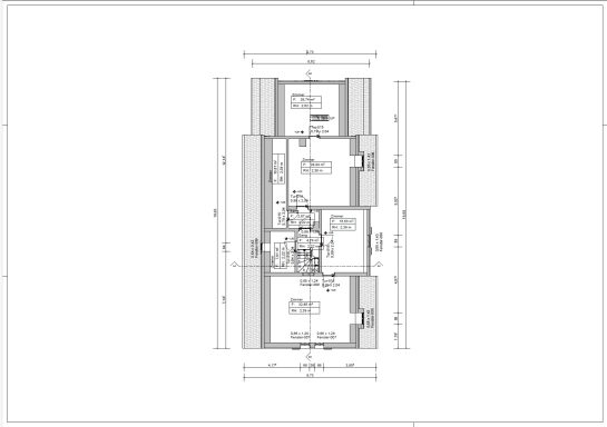
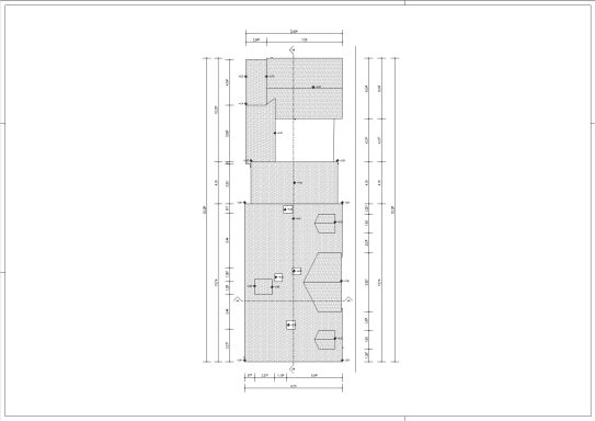
Grundrisse, Ansichten und Schnitte des Aufseherhauses Kassel
Grundrisse, Ansichten und Schnitte des Aufseherhauses Kassel
Diese Darstellungen zeigen die technische Dokumentation des Gebäudes – direkt aus dem digitalen 3D-Modell abgeleitet.
Die präzisen Grundrisse, Ansichten und Schnitte bilden die Basis für Planung, Sanierung und denkmalgerechte Auswertung.
So entsteht aus der 3D-Vermessung ein vollständiger digitaler Zwilling des historischen Bauwerks.
3D-Vermessung Kassel – Digitaler Zwilling im UNESCO-Welterbe
Das Aufseherhaus im Bergpark Wilhelmshöhe in Kassel, Teil des UNESCO-Welterbes, wurde mit moderner 3D-Vermessung präzise erfasst und als digitaler Zwilling dokumentiert. Die reduzierten 3D-Ansichten sowie Grundrisse, Ansichten und Schnitte zeigen die historische Bausubstanz klar und nachvollziehbar.
Auf Basis hochauflösender Punktwolken entstand ein exaktes BIM-Modell, das Planungs- und Sanierungsprozesse vereinfacht und die denkmalgerechte Auswertung unterstützt. So profitieren Auftraggeber von verlässlichen Bestandsdaten und effizienten Workflows.
Leistungen der 3D-Vermessung
Aufseherhaus Kassel – 3D-Vermessung & BIM im UNESCO-Welterbe
Digitale Bestandserfassung im Bergpark Wilhelmshöhe
Das Aufseherhaus am Herkules im Bergpark Wilhelmshöhe / Kassel ist Teil des UNESCO-Welterbes und ein bedeutendes Beispiel frühklassizistischer Baukunst. Im Auftrag der Planungsbeteiligten wurde das Gebäude durch den 3D-Vermessungsdienst vollständig digital erfasst – als Grundlage für Sanierung, Dokumentation und denkmalgerechte Planung.
Mit dem Leica BLK360 Laserscanner und ergänzender Matterport-3D-Digitalisierung entstand eine hochpräzise Punktwolke des gesamten Bauwerks. Sie bildet jedes architektonische Detail ab – vom Tuffsteinmauerwerk bis zu kleinsten Schadstellen – und diente als Basis für ein exakt ausgerichtetes BIM-Modell in Revit.
Die Fassade wurde fotorealistisch aufbereitet, um den tatsächlichen Bestand sichtbar zu machen und die Anforderungen des Denkmalschutzes zu erfüllen. So kann die historische Substanz in Kombination mit moderner 3D-Technologie dauerhaft dokumentiert und analysiert werden.
Der digitale Zwilling ermöglicht Architekten, Behörden und Fachplanern einen präzisen Einblick in den Gebäudebestand – egal ob für restauratorische Maßnahmen, Energie- und Schadensanalysen oder zukünftige Umbauplanungen. Über eine passwortgeschützte Matterport-Tour lässt sich das Objekt zudem virtuell begehen – inklusive sämtlicher Außenaufnahmen mit vollständiger Sicht auf die Fassade.
3D-Laserscanning historischer Gebäude
Historische Gebäude und denkmalgeschützte Bauwerke stellen besondere Anforderungen an die Bestandsvermessung. Mit modernem 3D-Laserscanning lassen sich komplexe Geometrien präzise erfassen, ohne die Bausubstanz zu beeinträchtigen. Die Methode eignet sich besonders für Projekte der Denkmalpflege, Sanierungsplanung und digitale Gebäudedokumentation.
Bei diesem Projekt kam ergänzend zur Vermessung auch Drohnentechnologie (UAV) zum Einsatz, um Dachflächen und schwer zugängliche Bereiche effizient zu erfassen.
Weitere Referenzprojekte der 3D-Vermessung
Weitere Projekte im Bereich Vermessung historischer Gebäude:
• Wasserburg Salzgitter
• Fachwerkhaus
• Bauernhaus Isernhagen
• Mehrfamilienhaus Wittenberge
Gutshof Hannover-Anderten
















